ペレットストーブ取り扱い商品

弊社にて取り扱っている、ペレットストーブをご紹介致します。
導入をご検討されている方は、ショールームにご来店頂きましたら実物をご覧頂けます。
どうぞお気軽にお立ちより下さい。

ペレットストーブラインナップ

PS-711F『ほのか』

業界初!!高気密住宅対応型で、足元あったか温風下吹き出しの木質ペレットストーブ
【価格:オープン価格】

カラーバリエーション

カラーバリエーション

※実物の製品とは、色が多少異なる場合がございます。

特徴

POINT①:設計のコンセプト

  1. 全ての建物に対応できること
    最近主流の「空気密住宅」でも問題なく稼働できる構造
  2. 温風下吹き出し
    本体下から温風が吹き出すので、足もとからあったか
  3. 稼動音の低減
    最低燃焼時に稼動音が静か
  4. コンパクトな設置面積
    コーナー(部屋の角)の設置にも配慮したコンパクト設計
  5. ダブルの暖房効果
    温風と遠赤効果で体の芯からあたためる
    また、大きな窓から見える炎には癒しの効果あり
  6. 高い安全性
    4つの安全装置搭載で、安全・安心
    ・耐震自動消火装置
    ・過熱防止装置
    ・点火安全装置
    ・燃焼制御装置
  7. 優れたメンテナンス性
    シンプル構造で、定期メンテナンスの手間も低減
  8. 寒い朝も快適
    おはようタイマー採用で、起床時間に合わせて自動点火
    通常使用時も短時間で自動点火
  9. 3色のバリエーション
    お客様の好みや空間に合わせ、カバーの色を選べる
  10. モダンなデザイン
    山形エクセレントデザイン賞を受賞した、洗練されたデザイン

POINT②:モニター試験

  1. 高気密住宅での試験
    換気扇を併用した場合でも、正常に燃焼できる事を確認
  2. 厳冬地での燃焼試験
    北海道・氷点下25℃の厳冬期でも確実に自動点火することを確認
  3. フィールド確認試験
    平成21年から日本各地でフィールド試験を実施。特に「温かさ・使い勝手」に関するお客様の声を製品に反映

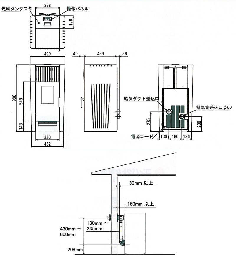
仕様・外形寸法図

※以下をクリックして頂くと、拡大してご覧頂けます。

仕様 外形寸法図
  • (※1) 暖房のめやすは、社団法人・日本ガス石油機器工業会の算定基準によります。
    暖房のめやすの寒冷地とは、室内外温度差が30℃の地域を指し、温暖地とは、室内外温度差が15℃の地域を指します。
    寒冷地の木造とは、木造戸建二重窓、断熱材75mmの建物を指し、コンクリートとは、コンクリート集合住宅の二重窓、断熱材30mmの建物を指します。
  • 暖房出力は、木質ペレットの発熱量、19,700kJ/kgを基に算出しています。
  • 主要諸元内容・イラスト・外観・色・マーク等を改良のため予告なく変更することがありますのでご了承下さい。

ペレットストーブ ペレットボイラーの販売から設置、アフターフォローまでお任せ下さい